The NOLA Cellar – New Orleans, Louisiana

A local contractor needed the help of a master builder for the renovation of a home in the French Quarter, the oldest and most famous neighborhood in New Orleans. Wine Cellar Specialists created a wine cellar design, and provided the racking, cooling unit, flooring, door, and lighting to convert a room that was originally a carriage house in the mansion into a fabulous wine cellar.
An Impressive Wine Cellar Design for a Beautiful Home

Working with a local contractor in the area, Wine Cellar Specialists designed and provided racks, door, cooling, led lighting, ladder, rails, and the stained glass window for this nearly 3,000-bottle wine cellar. They also worked directly with the customer to ensure that all his storage needs and requirements are met.
The Old Room

This side of the room would be the left wall of the completed wine cellar. The back wall had two doors. The right door lead to a bathroom, and the door on the left was the entrance door to the old room.
The 3-Dimensional Design
When creating a stunning design for a wine storage facility, we consider several factors. These include the room’s size and location, number of bottles that the client intended to be stored, budget, and aesthetic requirements. With careful assessment of these factors, and with our team’s passion and creativity, we were able to create a stellar New Orleans wine cellar design.
A combination of diamond bins, X bins, case storage, individual 750 bottle storage and French style racks were used for most of the cellar.
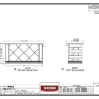
Elevation A (Left Wall)
Elevation A is the left wall when you enter the room. It starts with a solid quarter round shelf near the door.The upper bottle section includes the individual bottle racks, and two sections of French style wine racks. The bottom section consists of the diamond bins and four case storage slots.
A high reveal display row runs at the middle section of the right wall. This is a favorite racking style for wine enthusiasts because it allows some vintages to be highlighted in one row. The racks provided a wooden light valance above the display row for the led strip lighting.
A large dual pane stained glass window was also installed on the left side of the room above the center of the racking. It has a sunburst design and antique green glass. The twin evaporators are hidden with grill covers and boxes that match the racks on each side of the stained glass window, and are built into the racking for less visibility.
Elevation B (Back Wall) and Elevation C (Right Wall)

A granite counter top was provided by the installer. A solid arch with puck light and glass racks to each side were included.
A puck light was provided for over the arch. At the top of the arch are three solid X bins. The back end wall also consists of a half-height corner rack that sits on the double deep section.
The right wall, which is Elevation C, has the same racking in the left wall except for the top section, where we added more individual storage slots and two X bins.
Elevation D
Elevation D (door wall) consists of an X bin at the top and a diamond bin at the bottom. Between these rack configurations are four display rows for magnum-sized bottles. The end is finished off at the door with a solid quarter round rack.
Other Racking Features Added to the New Orleans Wine Cellar Design
The corners of all the racks have a true radius curve and the ends are finished off at the door wall with solid quarter rounds.
A center island was created with double deep solid diamond bins on both sides. The two ends are made of horizontal display racks that can accommodate standard 750 ml or magnum size bottles. The top is granite supplied by the installer.
The wine racks for this fabulous cellar were made from knotty Alder with “rustic” stain and lacquer. The bins are all a solid variety.
A bent rolling library ladder with hook assembly, and matte black rails and hardware were included. The ladder is in clear Alder with matching stain and clear coat.
The ladder rails are positioned and attached to a solid wood 4” surface built into the racking. Our customer chose the sunburst wheels for an elegant look.
The wine cellar rolling ladder allows for fast and easy access to bottles stored beyond reach in the racking.
The Wine Cellar Door and Flooring
An elegant wine room deserves a stunning door. The entryway to this New Orleans wine cellar installation project has an iron door design, which we have used in the past. We call it our Dallas Diamond design.
The customer wanted some slight changes in the pattern, which we were happy to do. The glass in the door is a seedy baroque, double pane.
Our customer chose a pewter mist color for the iron. We left the original flooring in the room, which is made of marble tiles.
The Climate-Control System
We installed an efficient wine cooling system to regulate the temperature and humidity in the wine cellar. Rack Mounted RM10000 Twin Evaporators were used to cool the room. The condensing unit sits outside and is hidden under a step area with bushes.
Considering Your Own Renovation Project? Work With a Trusted Wine Cellar Installer!
Wine Cellar Specialists was able to create an elegant custom wine cellar design for a client in New Orleans French Quarter. If you are considering your own renovation project, please don’t hesitate to call us at +1 (866) 646-7089!
Dallas






















































