Preston Hollow Wine Room with Custom Wood Racks Brilliantly Displays 3000-Bottles (Dallas, TX)





Center back wall | transitional wine room | wood wine racks | Dallas, TX. CLICK HERE to see larger image.
No matter the demands or capacity, Wine Cellar Specialists can create a custom wine room with wood or metal racks to fit your needs. Take for instance this custom remodel of a residential wine room in Preston Hollow, a suburb of Dallas, Texas. The homeowner needed a massive amount of storage. We built a 3000+ bottle capacity wood wine racks.
This project not only amazed the owner but impressed the Dallas Builders Association so much they awarded Wine Cellar Specialists their fifth ARC Award for Best Wine Cellar Remodel.
Award-Winning Remodeled Custom Wine Room

Wine Cellar Specialists 5th time winning the ARC Award | 2016 ARC Award presented by Dallas Builders Association | Preston Hollow CLICK TO learn more about the ARC Award.
Each year, the Dallas Builders Association singles out only a few companies and their projects for special recognition and awards. Since 2012, Wine Cellar Specialists has won five awards for their incredible custom wine cellar projects.
That’s a staggering number in such a short period of time for a local builder.
In 2016, Wine Cellar Specialists was given the Best Wine Cellar Remodel award by the Dallas Builders Association on this Preston Hollow, Dallas, TX project.
High-Capacity Storage Needed in Dallas, TX Home’s Wine Room & Wood Racks

Preston Hollow Texas Wine Cellar features a Hook Ladder
The #1 request from the client on this wine room project was to meet the demand for a large volume of at
least 3,000 bottle storage capacity for 750 sized bottle storage. We exceeded that expectation of the owner and created a total storage capacity of 3,230 bottles.
Custom Wood Wine Racks
To achieve this goal, we created custom valadis-style double deep racking for nearly all available space in the room.
The center of the back wall and the spaces near the soffit were the only exceptions we made to this mandate. The center back wall was used as a display for magnum sized bottles of wine, and the sides of the soffit were deep bottle storage.
Custom Knotty Alder Wine Racks Give a Special Design Appearance to any Wine Room

Custom Counter Top Added for Display and Storage

Rustic Stain was added to Double Deep Table Top in Dallas Wine Room. Click to see IMAGE ENLARGED.
A counter top was added to the wine room to store extra unique bottles of wine and as an area for wine tasting. Located beneath the counter top is double deep case storage.
Custom Contemporary Style Dual Pane Glass Doors Outside of a Traditional Style Wine Room
A big goal with the Dallas, Texas area wine room and racks was to create a rustic looking cellar that doesn’t look odd in the contemporary design of the Preston Hollow residence.
This bridge between the modern look of the home and the traditional look of the wine cellar itself is the dual pane glass doors. Excelling in form and function, one large 36’ wide door stands between two sidelights (narrow, stationary windows adjacent to the doorway), framed in black iron, giving the guest an outside view from the contemporary exterior into a more rustic/traditional aesthetic.

Traditional Wood Wine Racks in Preston Hollow, Dallas TX features lattice case storage
We used insulated iron to help keep the wine room at a consistent temperature.
A lock on the push door handle adds security to the cellar.
The door system acts like a large high-concept picture frame to another room, with a different style, helping to merge the type spaces, bringing them together conceptually and visually.
FIND a great selection of wine cellar doors for your home wine room!
Smart Wine Cellar Cooling Unit Solution for a Big Wine Room
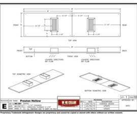
We installed the versatile Rack Mounted Wine Cellar Cooling Unit by US Cellar Systems (RM 6600). This high-velocity version of the cooling system was chosen because of the dual pane glass at the front of the wine room and because of the vast number of bottles in the room.
The compressor is placed in the garage and out of the way of the garage door. It’s found on top of a specially built shelf. Installed away from the wine room eliminates noise inside the wine cellar.
The Award-Winning Wine Room & Wood Racks – Final Result
The work speaks for itself, which is why Wine Cellar Specialists was recognized for its efforts in creating a fantastic residential custom wine room remodel.
Technically, this is one of our most impressive wine room projects. The custom wood wine racks are both stunning and efficient! We exceeded the customer’s wine storage needs by a wide margin. The added difficulty of designing a transitional wine room, creating a beautiful and unique space in the Dallas home, demonstrates why the Dallas Builders Association felt it necessary to recognize us once again as the premier wine cellar builder in the city.
CLICK HERE to find out how Wine Cellar Specialists can help remodel the wine cellar of your dreams!
Dallas































